Rumah Baru Bintara 1,5M Strategis, Jalan 2 Mobil, Siap Huni
Bintara, Bekasi Kota
- Rp 1.500.000.000
Deskripsi dan Spesifikasi
🏡 Dijual Rumah Baru Bintara (Duta Kranji), Bekasi Barat
Modern – Siap Huni – Akses 2 Mobil
Rumah baru dengan desain modern di kawasan strategis Bintara, cocok untuk hunian keluarga dengan akses mudah ke berbagai fasilitas.
📐 Spesifikasi:- Luas tanah: 100 m²
- Luas bangunan: 140 m²
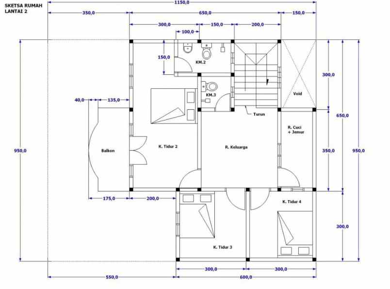
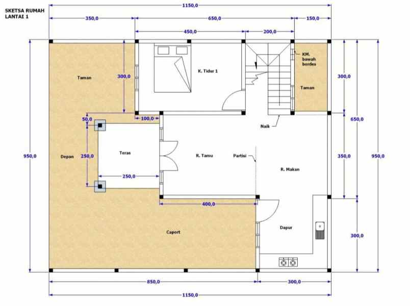
- Kamar tidur: 4
- Kamar mandi: 3
- Kondisi: Rumah baru (siap huni)
- Akses jalan: 2 mobil
- Lingkungan nyaman & strategis
- Akses mudah ke berbagai arah
- Cocok untuk hunian keluarga
Kawasan Bintara – Bekasi Barat (Duta Kranji)
- Dekat Tol JORR
- Dekat Stasiun Kranji
- Dekat pasar, sekolah & pusat kuliner
- Akses mudah ke Jakarta
Rp 1,5 Miliar
-ags-
- Tayang Sejak1 minggu yang lalu
- Luas Tanah140 m2
- Luas Bangunan100 m2
- Kamar Tidur4
- Kamar Mandi2
- SertifikatSHM - Sertifikat Hak Milik
- KondisiBekas
- KelengkapanKosongan
- Jumlah Lantai2
- Menghadap
- Parkir-
- Air PAM
Dilihat 24 kali
Calc. KPR
×
SELENGKAPNYA
Rumah Dijual di Bekasi Barat


